Trilocale in vendita

Genova, Via Tortona - Marassi
€ 105.000
3 locali 3 locali
75 Mq 75 Mq
1 bagno 1 bagno

Trilocale in vendita

Genova, Via Tortona - Marassi

Descrizione annuncio

VIA TORTONA.

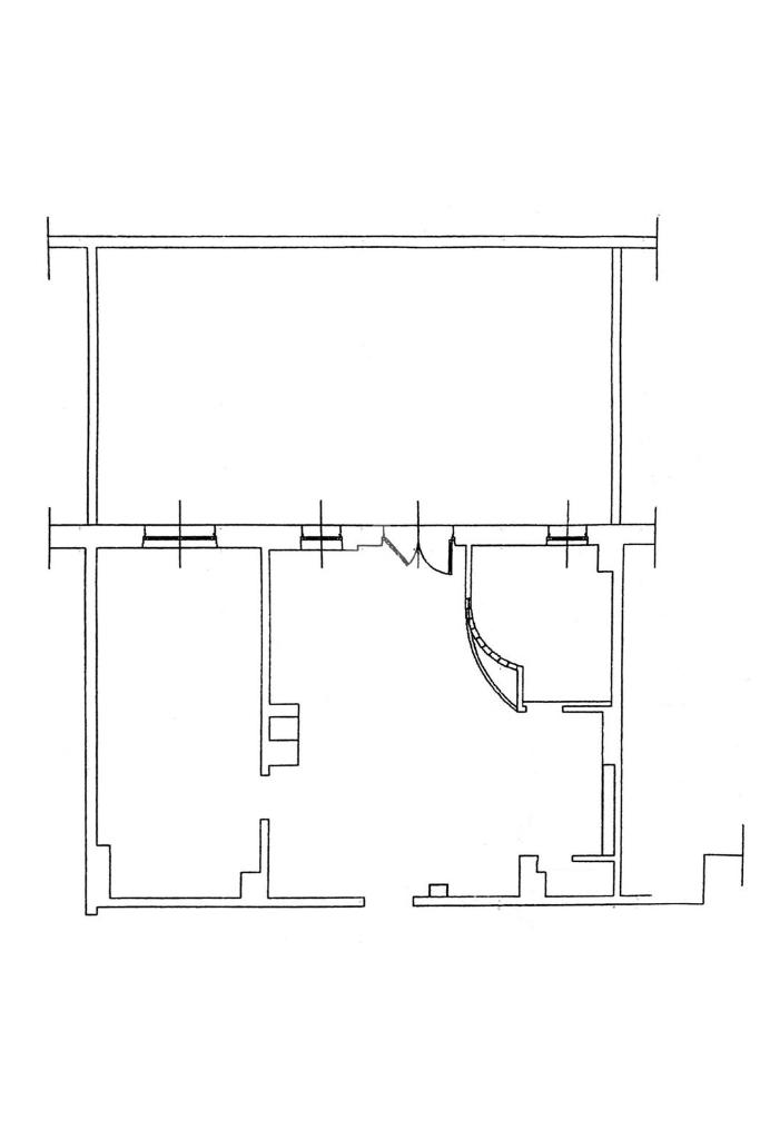
All’inizio di via Tortona, in un contesto pianeggiante e ben collegato con ogni servizio, proponiamo in vendita un grazioso appartamento di circa 75 mq, in ottimo stato di manutenzione. L’immobile si trova al piano rialzato di un edificio ordinato e dotato di ascensore, in una posizione strategica che consente di raggiungere facilmente la stazione ferroviaria di Genova Brignole, la fermata della metropolitana e il centro città, inoltre, la vicinanza al casello autostradale di Genova Est (a pochi minuti) garantisce un collegamento agevole con le principali arterie viarie, rendendo questa soluzione abitativa perfetta anche per chi si sposta frequentemente. Si tratta quindi di una soluzione abitativa ideale per chi desidera vivere in un contesto pratico e ben servito, senza rinunciare alla tranquillità.

L’ingresso si apre su una spaziosa e luminosa zona giorno con cucina a vista e accesso al terrazzo, che offre uno spazio esterno riservato e godibile. La camera da letto matrimoniale è ampia e ben proporzionata, mentre il bagno, dotato di finestra e box doccia, si presenta in ottime condizioni. Completa la proprietà un pratico ripostiglio, utile per ottimizzare gli spazi e mantenere la casa sempre in ordine.

Grazie alla sua distribuzione funzionale e alla posizione strategica, l’appartamento si presta perfettamente sia come prima casa per single o coppie, sia come investimento per chi cerca una soluzione da mettere a reddito. La zona, completamente urbanizzata e ben abitata, offre infatti tutti i servizi principali a pochi passi: negozi, mezzi pubblici, scuole, aree verdi e collegamenti rapidi con ogni punto della città.

Una proposta immobiliare interessante, pronta da vivere, che unisce comfort, praticità e ottima accessibilità. Per maggiori informazioni o per fissare una visita, non esitare a contattarci.

Mostra tutto

Nelle vicinanze

Trasporto pubblico Trasporto pubblico
Brignole
Brignole
2,1 Km
Darsena
Darsena
2,3 Km
Righi
Righi
1,0 Km
Genova Piazza Manin
Genova Piazza Manin
1,3 Km
Tortona 2
Tortona 2
30 m
Ricariche auto elettriche Ricariche auto elettriche
Cimitero Monumentale Genova Staglieno | EnelX
370 m
Genova Paul Valery | EnelX
730 m
Genova Marassi | EnelX
860 m
Stazione a monte Funicolare del Righi | EnelX
1,0 Km
Genova Zerbino | EnelX
1,5 Km
Scuole Scuole
Scuola secondaria 1° grado E. Ruffini - succursale
500 m
Scuola Media Statale Antonio Cantore
500 m
Scuola d'infanzia Statale Antonio Burlando
500 m
Scuola Primaria Statale Antonio Burlando
510 m
Scuola Elementare Gerolamo da Passano
600 m
Farmacia Farmacia
Farmacia Ligure
230 m
Farmacia Frisone
430 m
Farmacia comunale Burlando
640 m
Farmacia Carlevaro
690 m
Parafarmacia Coop Salute
760 m
Ospedali Ospedali
Ospedale Evangelico Internazionale
1,4 Km
ospedale San Martino
2,6 Km
Casa di Cura Villa Montallegro
2,9 Km
Supermercati Supermercati
Tuodì Market
40 m
Carrefour Express
330 m
LD Market
340 m
Punto SMA
460 m
IN's
560 m
Negozi Negozi
Bruno Peruselli
350 m
Panificio '900
420 m
Tognoni
660 m
Alimentari il biscione
910 m
Negozi
930 m
Bar Bar
Bar Sette
250 m
Bar
430 m
Bar Lucille
510 m
Bar degli Aperitivi
620 m
Bar Tom & Jerry
690 m
Ristoranti Ristoranti
Pizzeria risotteria Da Albi
570 m
Antica Ostaja
620 m
Pizzeria Da Boris
730 m
Ristorante l'Oscar
730 m
One Sushi
870 m
Mostra tutto

Caratteristiche

Rif.:
60982969
Piano:
Rialzato di 8 con ascensore
Totale piani:
8
Terrazzi:
1
Camere da letto:
2
Arredamento:
Assente
Mostra tutto
Prezzo Prezzo
€ 105.000
Rata mutuo Rata mutuo
€ 482 / mese
Spese annue Spese annue
€ 2.700
Proponi il tuo prezzoProponi il tuo prezzo
Immobile valutato con T·Valuta

Classe Energetica

E
E
E
E
E
E
E
E
E
EP globale non rinnovabile:
98.85 kW h/m² anno
EP globale rinnovabile:
66.50 kW h/m² anno
EP invernale del fabbricato:
EP estiva del fabbricato:
Anno di costruzione:
1960
Riscaldamento:
Centralizzato
Tipo impianto:
A radiatori
Tipo alimentazione:
Metano

Ti interessa visionare l'immobile?

Fissa un appuntamento  Fissa un appuntamento

Richiedi informazioni

* Questi campi sono obbligatori

Calcola il tuo mutuo

Semplice e senza impegno
Anticipo

( % )
Mutuo

( % )

pochi semplici passi

inserisci i tuoi dati
Questionario completato
Grazie per aver richiesto un appuntamento senza impegno con un nostro Consulente del Credito e Assicurativo.

Hai inserito correttamente tutti i dati necessari e a breve riceverai una e-mail con un link da convalidare per inviare i tuoi dati.
Affiliato
Studio Bobbio Srl
Via Bobbio , 66/AR 16121 Genova (GE)

Il nostro staff


  • Martina Cerruti
    Collaboratrice

  • Noemi De Angelis
    Coordinatrice

  • Antonio D'Auria
    Responsabile

  • Roberto De Barbieri
    Affiliato
Via Bobbio , 66/AR 16121 Genova (GE)
Zona: Marassi-Bobbio
Mostra su mappa
Orari: Dal lunedì al sabato dalle 09:00 alle 13:00 e dalle 15:00 alle 19:30
Affiliato
Studio Bobbio Srl
Via Bobbio , 66/AR 16121 Genova (GE)

2025 Tecnocasa Franchising S.p.A. - P. IVA 08365160152 - Via Monte Bianco 60/A 20089 Rozzano (MI). Ogni agenzia ha un proprio titolare ed è autonoma. Privacy policy | Policy utilizzo | Cookie policy