5 locali in vendita

Genova, Via Bobbio - Bobbio
€ 95.000
5 locali 5 locali
94 Mq 94 Mq
1 bagno 1 bagno

5 locali in vendita

Genova, Via Bobbio - Bobbio

Descrizione annuncio

VIA BOBBIO.

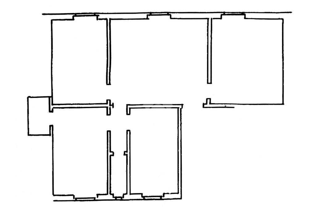
Nel cuore del quartiere di Marassi, a pochi minuti dalle stazioni della metro, dalla stazione ferroviaria di Genova Brignole e dal centro città, in una zona pianeggiante e comoda a mezzi, servizi e numerose attività commerciali, tra cui negozi, supermercati, bar e scuole, proponiamo in vendita un ampio appartamento di 5 locali situato al quarto piano di una palazzina d’epoca in buone condizioni interne ed esterne.

L’immobile si apre su una spaziosa sala, dalla quale si accede alla cucina abitabile e alle tre camere da letto, tutte matrimoniali e di generose dimensioni. Il bagno, finestrato, è dotato di box doccia, ed è inoltre presente un comodo ripostiglio, ideale come spazio aggiuntivo per l’organizzazione domestica.

Il riscaldamento è autonomo, soluzione perfetta per una gestione efficiente dei consumi, gli infissi sono in doppio vetro garantendo ottimo isolamento sia termico che acustico e inoltre è presente una porta d'ingresso blindata per una maggiore sicurezza. La posizione al piano alto garantisce un’ottima luminosità naturale durante tutto l’arco della giornata.

Grazie alla posizione centrale e alla vicinanza ai principali servizi del quartiere, questa casa rappresenta una soluzione ideale per chi desidera vivere in un contesto pratico, ben collegato e ricco di comodità.

Mostra tutto

Nelle vicinanze

Trasporto pubblico Trasporto pubblico
Brignole
Brignole
1,2 Km
De Ferrari
De Ferrari
1,6 Km
Genova Piazza Manin
Genova Piazza Manin
340 m
Righi
Righi
1,1 Km
Trasporto pubblico
30 m
Ricariche auto elettriche Ricariche auto elettriche
Genova Marassi | EnelX
130 m
Genova Paul Valery | EnelX
440 m
Genova Zerbino | EnelX
560 m
Genova Pacifici | EnelX
680 m
Genova Corso Magenta | EnelX
830 m
Scuole Scuole
Scuola Primaria Statale 'Giovine Italia'
230 m
Scuola Infanzia Giovine Italia
240 m
Scuola secondaria 1° Ruffini
260 m
Istituto Secondario Superiore Statale "Edoardo Firpo - Michelangelo Buonarroti"
360 m
Scuola Elementare Gerolamo da Passano
420 m
Farmacia Farmacia
Farmacia Chiappazzo
40 m
Farmacia Montaldo
100 m
Parafarmacia Coop Salute
270 m
Farmacia del Castello
490 m
Farmacia Frisone
510 m
Ospedali Ospedali
Ospedale Evangelico Internazionale
570 m
Ospedale Galliera
2,1 Km
ospedale San Martino
2,2 Km
Casa di Cura Villa Montallegro
2,2 Km
Clinica Villa Serena
2,4 Km
Supermercati Supermercati
Ekom
110 m
Issimo
120 m
Eurospin
210 m
COOP
250 m
IN's
380 m
Negozi Negozi
Tognoni
320 m
Angelo
410 m
Negozi
410 m
Vecchio forno Fossati
430 m
Panificio Pasticceria Diego
510 m
Bar Bar
Pino
100 m
Roxi Bar
190 m
Bar Tom & Jerry
280 m
Bar Pressing
300 m
Bar degli Aperitivi
310 m
Ristoranti Ristoranti
Trattoria Mezzodì casalingo
80 m
One Sushi
140 m
Da Marcello
150 m
Ristorante l'Oscar
200 m
Pizzeria Da Boris
210 m
Mostra tutto

Caratteristiche

Rif.:
61146015
Piano:
4 di 5 (Piano alto)
Camere da letto:
3
Arredamento:
Assente
Condizionamento:
Assente
Ascensore:
No
Mostra tutto
Prezzo Prezzo
€ 95.000
Rata mutuo Rata mutuo
€ 448 / mese
Spese annue Spese annue
€ 900
Proponi il tuo prezzoProponi il tuo prezzo

Classe Energetica

F
F
F
F
F
F
F
F
F
EP globale non rinnovabile:
100.66 kW h/m² anno
EP globale rinnovabile:
39.19 kW h/m² anno
EP invernale del fabbricato:
EP estiva del fabbricato:
Anno di costruzione:
1950
Riscaldamento:
Autonomo
Tipo impianto:
A radiatori
Tipo alimentazione:
Altro

Ti interessa visionare l'immobile?

Fissa un appuntamento  Fissa un appuntamento

Richiedi informazioni

Clicca su Leggi per aprire l'informativa
* Questi campi sono obbligatori

Calcola il tuo mutuo

Semplice e senza impegno
Anticipo

( % )
Mutuo

( % )

pochi semplici passi

inserisci i tuoi dati
Questionario completato
Grazie per aver richiesto un appuntamento senza impegno con un nostro Consulente del Credito e Assicurativo.

Hai inserito correttamente tutti i dati necessari e a breve riceverai una e-mail con un link da convalidare per inviare i tuoi dati.
Affiliato
Studio Bobbio Srl
Via Bobbio , 66/AR 16121 Genova (GE)

Il nostro staff


  • Martina Cerruti
    Collaboratrice

  • Noemi De Angelis
    Coordinatrice

  • Antonio D'Auria
    Responsabile

  • Roberto De Barbieri
    Affiliato
Via Bobbio , 66/AR 16121 Genova (GE)
Zona: Marassi-Bobbio
Mostra su mappa
Orari: Dal lunedì al sabato dalle 09:00 alle 13:00 e dalle 15:00 alle 19:30
Affiliato
Studio Bobbio Srl
Via Bobbio , 66/AR 16121 Genova (GE)

2025 Tecnocasa Franchising S.p.A. - P. IVA 08365160152 - Via Monte Bianco 60/A 20089 Rozzano (MI). Ogni agenzia ha un proprio titolare ed è autonoma. Privacy policy | Policy utilizzo | Cookie policy